13606176983

|
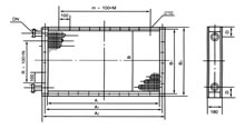
型号 FU1- |
散热面积(M2) | 迎风面积(M2) |
通风净 截面积(M2) |
表面 管数 |
排 数 |
连接管 Dn(mm) |
尺寸: (mm) | ||||||||||
| A | B | A1 | A2 | B1 | B2 | D | n | N | m | M | |||||||
| 5×5 | 10.854 | 0.257 | 0.123 | 9 | 2 |
40 |
500 |
513 |
560 | 600 |
553 |
593 |
75 | 4 | 400 | 4 | 400 |
| 8×5 | 17.366 | 0.410 | 0.196 | 800 | 860 | 900 | 7 | 700 | |||||||||
| 10×5 | 21.708 | 0.513 | 0.245 | 1000 | 1060 | 1100 | 9 | 900 | |||||||||
| 12×5 | 26.049 | 0.616 | 0.394 | 1200 | 1260 | 1300 | 11 | 1100 | |||||||||
| 6×6 | 17.366 | 0.405 | 0.191 | 12 | 2 |
40 |
600 |
675 |
660 | 700 |
715 |
755 |
75 |
5 |
500 |
5 | 500 |
| 8×6 | 23.155 | 0.54 | 0.255 | 800 | 860 | 900 | 7 | 700 | |||||||||
| 10×6 | 28.944 | 0.675 | 0.318 | 1000 | 1060 | 1100 | 9 | 900 | |||||||||
| 12×6 | 34.733 | 0.81 | 0.381 | 1200 | 1260 | 1300 | 11 | 1100 | |||||||||
| 14×6 | 40.52 | 0.945 | 0.445 | 1600 | 1460 | 1500 | 13 | 1300 | |||||||||
| 8×8 | 28.944 | 0.67 | 0.313 | 15 | 2 |
50 |
800 |
837 |
860 | 900 |
877 |
917 |
75 |
7 |
700 |
7 | 700 |
| 10×8 | 36.18 | 0.827 | 0.391 | 1000 | 1060 | 1100 | 9 | 900 | |||||||||
| 12×8 | 43.416 | 1.004 | 0.469 | 1200 | 1260 | 1300 | 11 | 1100 | |||||||||
| 14×8 | 50.652 | 1.172 | 0.547 | 1400 | 1460 | 1500 | 13 | 1300 | |||||||||
| 16×8 | 57.888 | 1.339 | 0.625 | 1600 | 1660 | 1700 | 15 | 1500 | |||||||||
| 14×10 | 64.159 | 1.474 | 0.683 | 19 |
2 |
65 |
1400 |
1053 |
1460 | 1500 |
1093 |
1133 |
75 |
9 |
900 |
13 | 1300 |
| 16×10 | 73.325 | 1.685 | 0.78 | 1600 | 1660 | 1700 | 15 | 1500 | |||||||||
| 18×10 | 82.490 | 1.895 | 0.878 | 1800 | 1860 | 1900 | 17 | 1700 | |||||||||
| 20×10 | 91.656 | 2.106 | 0.975 | 2000 | 2060 | 2100 | 19 | 1900 | |||||||||
| 22×10 | 100.822 | 2.317 | 1.073 | 2200 | 2260 | 2300 | 21 | 2100 | |||||||||
| 25×10 | 114.570 | 2.633 | 1.218 | 2500 | 2560 | 2600 | 24 | 2400 | |||||||||
| 18×12 | 99.857 | 2.284 | 1.052 | 23 |
2 |
80 |
1800 |
1269 |
1860 | 1900 |
1309 |
1349 |
75 |
11 |
1100 |
17 | 1700 |
| 20×12 | 110.952 | 2.538 | 1.169 | 2000 | 2060 | 2100 | 19 | 1900 | |||||||||
| 22×12 | 122.047 | 2.792 | 1.286 | 2200 | 2260 | 2300 | 21 | 2100 | |||||||||
| 25×12 | 138.69 | 3.173 | 1.461 | 2500 | 2560 | 2600 | 24 | 2400 | |||||||||
| 28×12 | 155.333 | 3.553 | 1.637 | 2800 | 2860 | 2900 | 27 | 2700 | |||||||||
| 30×12 | 166.428 | 3.807 | 1.754 | 3000 | 3060 | 3100 | 29 | 2900 | |||||||||
相关产品
董经理:13606176983
电 话:0510-85959748
网 址:www.wx-hhsh.com
邮 箱:hh@wx-hhsh.com
地 址:中国江苏省无锡市滨湖区锡南路15号
No. 15, XiNanRoad, BinhuDistrict, WuXiCity, JiangsuProvince, China
邮 编:214128