13606176983

|
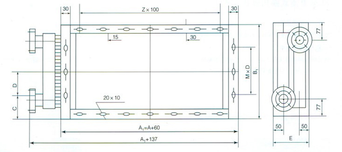
表面 根数 (根) |
全高 B1 (mm) |
有效 高度B (mm) |
水管通水断面 fd(mm2) |
项目 | 排数 | 全长(mm) |
螺钉 孔间 距数 (M) |
|||||||
| 610 | 810 | 1010 | 1210 | 1410 | 1610 | 1810 | ||||||||
| 二排 | 四排 | 有效长 A (mm) | ||||||||||||
| 400 | 600 | 800 | 1000 | 1200 | 1400 | 1600 | ||||||||
| 6 | 361 | 299 | 0.000942 | 0.001884 |
散热面积F(m2) 迎风面积 fy(m2) |
2 4 |
3.69 7.38 |
5.54 11.18 |
7.39 14.78 |
9.24 18.48 |
11.09 22.18 |
12.92 25.54 |
14.79 29.48 |
3 |
| 2、4 | 0.12 | 0.181 | 0.241 | 0.301 | 0.361 | 0.422 | 0.482 | |||||||
| 8 | 453 | 391 | 0.001256 | 0.002512 | F(m2) |
2 4 |
4.94 9.88 |
7.40 14.80 |
9.87 19.74 |
12.32 24.64 |
14.80 29.60 |
17.28 34.56 |
19.75 39.50 |
4 |
| fy(m2) | 2、4 | 0.157 | 0.236 | 0.314 | 0.393 | 0.472 | 0.550 | 0.629 | ||||||
| 10 | 545 | 483 | 0.00157 | 0.00314 | F(m2) |
2 4 |
6.16 12.32 |
9.25 18.50 |
12.31 24.62 |
15.40 30.80 |
18.45 36.98 |
21.58 43.16 |
24.62 49.24 |
5 |
| fy(m2) | 2、4 | 0.194 | 0.29~ | 0.388 | 0.485 | 0.582 | 0.679 | 0.776 | ||||||
| 12 | 637 | 575 | 0.001884 | 0.003768 | F(m2) |
2 4 |
7.38 14.76 |
11.16 22.38 |
14.78 29.56 |
18.48 36.98 |
22.18 44.36 |
25.85 51.70 |
29.55 59.10 |
6 |
| fy(m2) | 2、4 | 0.230 | 0.346 | 0.461 | 0.577 | 0.693 | 0.807 | 0.924 | ||||||
| 14 | 729 | 667 | 0.002198 | 0.004396 | F(m2) |
2 4 |
8.62 17.24 |
12.92 25.84 |
17.22 34.44 |
21.56 43.12 |
25.85 51.70 |
30.18 60.38 |
34.41 56.88 |
7 |
| fy(m2) | 2、4 | 0.268 | 0.402 | 0.536 | 0.669 | 0,802 | 0.938 | 1.071 | ||||||
| 16 | 821 | 759 | 0.002512 | 0.005624 | F(m2) |
2 4 |
9.86 19.71 |
14.80 29.60 |
19.71 39.42 |
24.54 49.28 |
29.60 59.29 |
34.55 69.10 |
39.42 78.84 |
8 |
| fy(m2) | 2、4 | 0.304 | 0.457 | 0.609 | 0.761 | 0.951 | 1.064 | 1218 | ||||||
| 18 | 913 | 851 | 0.002826 | 0.005652 | F(m2) |
2 4 |
11.10 22.20 |
16.63 33.26 |
22.20 44.40 |
27.72 55.44 |
33.25 66.50 |
38.80 77.50 |
44.40 56.80 |
9 |
| fy(m2) | 2、4 | 0.344 | 0.512 | 0.683 | 0.853 | 1.024 | 1.190 | 1.365 | ||||||
| 20 | 1005 | 943 | 0.00314 | 0.00628 | F(m2) |
2 4 |
12.30 24.60 |
18.50 37.00 |
24.60 49.20 |
30.80 61.60 |
37.00 74.00 |
43.10 86.20 |
49.30 98.50 |
10 |
| fy(m2) | 2、4 | 0.378 | 0.567 | 0.756 | 0.945 | 1.130 | 1.320 | 1.510 | ||||||
| 宽度 E(MM) | 二排:170; 四排:220 D=92mm C=41.5 | |||||||||||||
| 进出水管法兰盘内径Φ(mm) | 二排:Φ61; 四排:Φ77 | |||||||||||||
相关产品
董经理:13606176983
电 话:0510-85959748
网 址:www.wx-hhsh.com
邮 箱:hh@wx-hhsh.com
地 址:中国江苏省无锡市滨湖区锡南路15号
No. 15, XiNanRoad, BinhuDistrict, WuXiCity, JiangsuProvince, China
邮 编:214128