13606176983

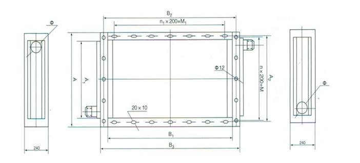
| 散热器型号 |
通风净 截面积 (m2) |
散热 面积 (m2) |
热 媒 |
管束 数量 |
尺寸(mm) | 连接管 | ||||||||
| A4 | B1 | A2 | B 2 | A 3 | B3 | N | N 1 | C | ||||||
| SZL(B)-5×5/3 | 0.074 | 16.48 |
蒸 汽 或 高 温 水 |
20 | 470 | 500 | 530 | 560 | 570 | 600 | 3 | 2 | 240 | 1 |
| SZL(B)-5×5/2 | 0.074 | 10.71 | 13 | 180 | ||||||||||
| SZL(B)-7×7/3 | 0.167 | 33.45 | 29 | 656 | 700 | 716 | 760 | 756 | 800 | 3 | 4 | 240 | 1 | |
| SZL(B)-7×7/2 | 0.167 | 21.92 | 19 | 180 | ||||||||||
| SZL(B)-8×8/3 | 0.266 | 46.14 | 35 | 780 | 800 | 840 | 860 | 880 | 900 | 5 | 4 | 240 |
1 1/2 |
|
| SZL(B)-8×8/2 | 0.266 | 30.32 | 23 | 180 | ||||||||||
| SZL(B)-8×10/3 | 0.331 | 57.68 | 35 | 1000 | 1060 | 1100 | 4 | 240 | ||||||
| SZL(B)-8×10/2 | 0.331 | 37.90 | 23 | 180 | ||||||||||
| SZL(B)-8×12/3 | 0.410 | 69.22 | 35 | 1200 | 1260 | 1300 | 5 | 240 | ||||||
| SZL(B)-8×12/2 | 0.410 | 45.48 | 23 | 180 | ||||||||||
| SZL(B)-8×14/3 | 0.482 | 80.75 | 35 | 1400 | 1460 | 1500 | 5 | 240 | ||||||
| SZL(B)-8×14/2 | 0.482 | 53.07 | 23 | 180 | ||||||||||
| SZL(B)-9×10/3 | 0.397 | 67.57 | 41 | 904 | 1000 | 964 | 1060 | 1004 | 1100 | 5 | 4 | 240 | 2 | |
| SZL(B)-9×10/2 | 0.397 | 44.50 | 27 | 180 | ||||||||||
| SZL(B)-9×12/3 | 0.481 | 81.08 | 41 | 1200 | 1260 | 1300 | 5 | 240 | ||||||
| SZL(B)-9×12/2 | 0.481 | 53.40 | 27 | 180 | ||||||||||
| SZL(B)-9×14/3 | 0.565 | 94.60 | 41 | 1400 | 1460 | 1500 | 5 | 240 | ||||||
| SZL(B)-9×14/2 | 0.565 | 62.30 | 27 | 180 | ||||||||||
| SZL(B)-9×16/3 | 0.650 | 108.11 | 41 | 1600 | 1660 | 1700 | 6 | 240 | ||||||
| SZL(B)-9×16/2 | 0.650 | 71.20 | 27 | 180 | ||||||||||
| SZL(B)-10×12/3 | 0.552 | 92.95 | 47 | 1028 | 1200 | 1088 | 1260 | 1128 | 1300 | 5 | 5 | 240 |
1 1/2 |
|
| SZL(B)-10×12/2 | 0.552 | 61.31 | 31 | 180 | ||||||||||
| SZL(B)-10×14/3 | 0.649 | 108.44 | 47 | 1400 | 1460 | 1500 | 5 | 240 | ||||||
| SZL(B)-10×14/2 | 0.649 | 71.52 | 31 | 180 | ||||||||||
| SZL(B)-10×16/3 | 0.745 | 123.93 | 47 | 1600 | 1660 | 1700 | 6 | 240 | ||||||
| SZL(B)-10×16/2 | 0.745 | 81.74 | 31 | 180 | ||||||||||
| SZL(B)-10×18/3 | 0.842 | 139.42 | 47 | 1800 | 1860 | 1900 | 6 | 240 | ||||||
| SZL(B)-10×18/2 | 0.842 | 91.96 | 31 | 180 | ||||||||||
| SZL(B)-10×20/3 | 0.939 | 154.91 | 47 | 2000 | 2060 | 2100 | 7 | 240 | ||||||
| SZL(B)-10×20/2 | 0.939 | 102.18 | 31 | 180 | ||||||||||
相关产品
董经理:13606176983
电 话:0510-85959748
网 址:www.wx-hhsh.com
邮 箱:hh@wx-hhsh.com
地 址:中国江苏省无锡市滨湖区锡南路15号
No. 15, XiNanRoad, BinhuDistrict, WuXiCity, JiangsuProvince, China
邮 编:214128